Informuojame, kad svetainėje naudojami slapukai (angl. cookies) produktų krepšelio formavimui bei tinkamam šios svetainės funkcionavimui. Detalesnę informaciją apie naudojamus slapukus, bei kaip atsisakyti savo sutikimo, galite rasti čia.

Sutinku uždaryti

Namo projektas Arnas

Bendra informacija

Bendras plotas 98.25 m2
Gyvenamasis plotas 69.73 m2
Užstatymo plotas 80.00 m2
Ilgis 8.00 m
Plotis 10.00 m
Aukštis 7.67 m
Stogo pasvirimas 40°
Perkant internetu € 1.665,00
Namo projekto kaina € 1.850,00
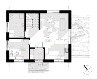
101. Tambūras 3,69  m2
102. Darbo kambarys 9,92  m2
103. Sanmazgas 9,07  m2
104. Svetainė - virtuvė - valgomasis 35,93  m2
Viso: 58,61 m2

Pirmo aukšto planas

Vieno aukšto namų projektai su mansarda Arnas | NPS Projektai
201. Holas 3,29  m2
202. Sanmazgas 5,11  m2
203. Vaiko kambarys 11,99  m2
204. Drabužinė 2,85  m2
205. Drabužinė 1,15  m2
206. Drabužinė 3,36  m2
207. Tėvų miegamasis 11,89  m2
Viso: 39,64 m2

Antro aukšto planas

Vieno aukšto namų projektai su mansarda Arnas | NPS Projektai

Video

Pastato duomenys

Aukštų skaičius 2
Kambarių skaičius 3
Sanmazgų skaičius 2
Naudingas plotas 98.25 m2
Pamatų konstruktyvas pagal geologiją 350 € + PVM
Min. sklypo plotas 400 m2
Kaina su statybos leidimu 3500 € + PVM
Namo projekto 3D modelis 219 € + PVM

Vieno aukšto su mansarda gyvenamasis namas Arnas, mežesnis nei 100 m2, dvišlaiciu stogu, paprasto ir patogaus išplanavimo, su trimis kambariais, kuriame gales isikurti 3 - 4 asmenu šeima. Prie namo numatyta terasa 15 m2. Automobilius galima laikyti stogineje (jos projekta, jei jis reikalingas taip pat parengsime). Stogo, sienu, namo apdailos statybines medžiagos parenkamos kiekvienam užsakovui individualiai rengiant technini (technini – darbo) projekta. Galimi ivairus pakeitimai namo plane ar fasaduose. Gyvenamojo namo statyba yra nesudetinga ir ekonomiška, del parinktu paprastu konstrukciju ir sprendiniu.

Rekomenduojame
  • NPS TECHNOLOGY
  • NP5 House
  • NP5 Constructions
  • NP5
Nuo idėjos iki rakto...

© 2020 NPS Visos teisės saugomos. Privatumo politika.

Interneto svetainių kūrimas Interneto svetainių kūrimas OWEXX
Namų projektai

Reikia pagalbos?
O gal turite klausimų?

Jus aptarnaus įmonės konsultantas

Palikti žinutę
Reikia pagalbos?
Menu
Back

Namo projektas Arnas

Bendra informacija

Bendras plotas 98.25 m2
Gyvenamasis plotas 69.73 m2
Užstatymo plotas 80.00 m2
Ilgis 8.00 m
Plotis 10.00 m
Aukštis 7.67 m
Stogo pasvirimas 40°
Perkant internetu € 1.665,00
Namo projekto kaina € 1.850,00
101. Tambūras 3,69  m2
102. Darbo kambarys 9,92  m2
103. Sanmazgas 9,07  m2
104. Svetainė - virtuvė - valgomasis 35,93  m2
Viso: 58,61 m2

Pirmo aukšto planas

Vieno aukšto namų projektai su mansarda Arnas | NPS Projektai
201. Holas 3,29  m2
202. Sanmazgas 5,11  m2
203. Vaiko kambarys 11,99  m2
204. Drabužinė 2,85  m2
205. Drabužinė 1,15  m2
206. Drabužinė 3,36  m2
207. Tėvų miegamasis 11,89  m2
Viso: 39,64 m2

Antro aukšto planas

Vieno aukšto namų projektai su mansarda Arnas | NPS Projektai

Video

Pastato duomenys

Aukštų skaičius 2
Kambarių skaičius 3
Sanmazgų skaičius 2
Naudingas plotas 98.25 m2
Pamatų konstruktyvas pagal geologiją 350 € + PVM
Min. sklypo plotas 400 m2
Kaina su statybos leidimu 3500 € + PVM
Namo projekto 3D modelis 219 € + PVM

Vieno aukšto su mansarda gyvenamasis namas Arnas, mežesnis nei 100 m2, dvišlaiciu stogu, paprasto ir patogaus išplanavimo, su trimis kambariais, kuriame gales isikurti 3 - 4 asmenu šeima. Prie namo numatyta terasa 15 m2. Automobilius galima laikyti stogineje (jos projekta, jei jis reikalingas taip pat parengsime). Stogo, sienu, namo apdailos statybines medžiagos parenkamos kiekvienam užsakovui individualiai rengiant technini (technini – darbo) projekta. Galimi ivairus pakeitimai namo plane ar fasaduose. Gyvenamojo namo statyba yra nesudetinga ir ekonomiška, del parinktu paprastu konstrukciju ir sprendiniu.

Rekomenduojame
  • NPS TECHNOLOGY
  • NP5 House
  • NP5 Constructions
  • NP5
Nuo idėjos iki rakto...

© 2020 NPS Visos teisės saugomos. Privatumo politika.

Interneto svetainių kūrimas Interneto svetainių kūrimas OWEXX
Pilna www.namuprojektas.lt versija
Mobili www.namuprojektas.lt versija