Informuojame, kad svetainėje naudojami slapukai (angl. cookies) produktų krepšelio formavimui bei tinkamam šios svetainės funkcionavimui. Detalesnę informaciją apie naudojamus slapukus, bei kaip atsisakyti savo sutikimo, galite rasti čia.

Sutinku uždaryti

Namo projektas Inga

Bendra informacija

Bendras plotas 146,34 m2
Gyvenamasis plotas 110,49 m2
Užstatymo plotas 101.78/182.59 m2
Ilgis 16,49 m
Plotis 11,08 m
Aukštis 8,12 m
Stogo pasvirimas 8/14°
Perkant internetu € 1.665,00
Namo projekto kaina € 1.850,00
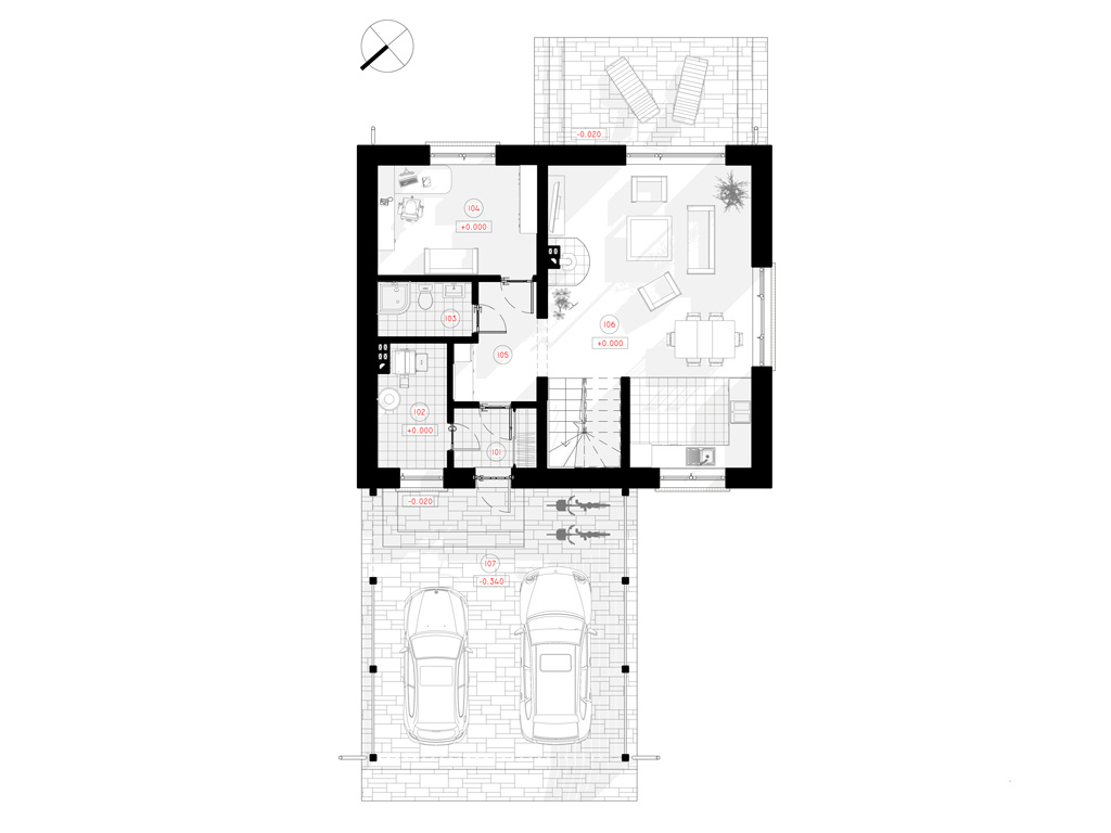
101. Tambūras 3,71  m2
102. Katilinė 6,15  m2
103. Sanmazgas 3,87  m2
104. Darbo kambarys 12,81  m2
105. Koridorius - holas 6,26  m2
106. Svetainė - virtuvė - valgomasis 41,72  m2
107. Stoginė 48,13  m2
Viso: 122,65 m2

Pirmo aukšto planas

Dviejų aukštų išskirtinis gyvenamasis namas – Inga | NPS Projektai
201. Holas - laiptinė 5,87  m2
202. Sanmazgas 9,02  m2
203. Drabužinė 4,97  m2
204. Tėvų miegamasis 20,19  m2
205. Drabužinė 5,58  m2
206. Vaiko kambarys 13,08  m2
207. Vaiko kambarys 13,11  m2
Viso: 71,82 m2

Antro aukšto planas

Dviejų aukštų išskirtinis gyvenamasis namas – Inga | NPS Projektai

Pastato duomenys

Aukštų skaičius 2
Kambarių skaičius 4
Sanmazgų skaičius 2
Garažo vietų skaičius 2
Naudingas plotas 146,34 m2
Pamatų konstruktyvas pagal geologiją 350 € + PVM
Kaina su statybos leidimu 3500 € + PVM

Dviejų aukštų išskirtinis gyvenamasis namas – Inga, vienšlaičiu stogu ant namo ir dvišlaičiu stogu ant stoginės, su keturiais kambariais, skirtas 4 - 5 asmenų ar didesnei šeimai. Namo bendras plotas nedidelis tik - 146,34 m2. Namo išplanavimas racionaliai suskirstytas į pagalbinę, gyvenamąją (bendra virtuvė su svetaine ir valgomuoju, taip pat darbo kambarys), antrajame aukšte – poilsio (miegamieji kambariai, su patogiomis drabužinėmis). Prie namo suprojektuota stoginė dviems automobiliams. Pagal Jūsų pageidavimus galime atlikti pakeitimus ir korekcijas namo planuose ar fasaduose. Stogo danga, sienos, namo apdailos statybinės medžiagos parenkamos pagal kiekvieną užsakovą individualiai.

Rekomenduojame
  • NPS TECHNOLOGY
  • NP5
  • NP5 House
  • NP5 Constructions
Nuo idėjos iki rakto...

© 2020 NPS Visos teisės saugomos. Privatumo politika.

Interneto svetainių kūrimas Interneto svetainių kūrimas OWEXX
Namų projektai

Reikia pagalbos?
O gal turite klausimų?

Jus aptarnaus įmonės konsultantas

Palikti žinutę
Reikia pagalbos?
Menu
Back

Namo projektas Inga

Bendra informacija

Bendras plotas 146,34 m2
Gyvenamasis plotas 110,49 m2
Užstatymo plotas 101.78/182.59 m2
Ilgis 16,49 m
Plotis 11,08 m
Aukštis 8,12 m
Stogo pasvirimas 8/14°
Perkant internetu € 1.665,00
Namo projekto kaina € 1.850,00
101. Tambūras 3,71  m2
102. Katilinė 6,15  m2
103. Sanmazgas 3,87  m2
104. Darbo kambarys 12,81  m2
105. Koridorius - holas 6,26  m2
106. Svetainė - virtuvė - valgomasis 41,72  m2
107. Stoginė 48,13  m2
Viso: 122,65 m2

Pirmo aukšto planas

Dviejų aukštų išskirtinis gyvenamasis namas – Inga | NPS Projektai
201. Holas - laiptinė 5,87  m2
202. Sanmazgas 9,02  m2
203. Drabužinė 4,97  m2
204. Tėvų miegamasis 20,19  m2
205. Drabužinė 5,58  m2
206. Vaiko kambarys 13,08  m2
207. Vaiko kambarys 13,11  m2
Viso: 71,82 m2

Antro aukšto planas

Dviejų aukštų išskirtinis gyvenamasis namas – Inga | NPS Projektai

Pastato duomenys

Aukštų skaičius 2
Kambarių skaičius 4
Sanmazgų skaičius 2
Garažo vietų skaičius 2
Naudingas plotas 146,34 m2
Pamatų konstruktyvas pagal geologiją 350 € + PVM
Kaina su statybos leidimu 3500 € + PVM

Dviejų aukštų išskirtinis gyvenamasis namas – Inga, vienšlaičiu stogu ant namo ir dvišlaičiu stogu ant stoginės, su keturiais kambariais, skirtas 4 - 5 asmenų ar didesnei šeimai. Namo bendras plotas nedidelis tik - 146,34 m2. Namo išplanavimas racionaliai suskirstytas į pagalbinę, gyvenamąją (bendra virtuvė su svetaine ir valgomuoju, taip pat darbo kambarys), antrajame aukšte – poilsio (miegamieji kambariai, su patogiomis drabužinėmis). Prie namo suprojektuota stoginė dviems automobiliams. Pagal Jūsų pageidavimus galime atlikti pakeitimus ir korekcijas namo planuose ar fasaduose. Stogo danga, sienos, namo apdailos statybinės medžiagos parenkamos pagal kiekvieną užsakovą individualiai.

Rekomenduojame
  • NPS TECHNOLOGY
  • NP5
  • NP5 House
  • NP5 Constructions
Nuo idėjos iki rakto...

© 2020 NPS Visos teisės saugomos. Privatumo politika.

Interneto svetainių kūrimas Interneto svetainių kūrimas OWEXX
Pilna www.namuprojektas.lt versija
Mobili www.namuprojektas.lt versija