Namo projektas Aušra

Bendra informacija

Bendras plotas 126,53 m2
Gyvenamasis plotas 57,95 m2
Užstatymo plotas 198,00 m2
Ilgis 8,45 m
Plotis 18,20 m
Aukštis 6,80 m
Stogo pasvirimas 38 °
Namo projekto kaina € 1850.00

Pirmo aukšto planas

Pirmo aukšto planas
1. Holas - laiptinė 19,02  m2
2. Svetainė - virtuvė - valgomasis 24,98  m2
3. Sanmazgas 5,04  m2
4. Kambarys 9,60  m2
5. Darbo kambarys 7,89  m2
6. Tambūras - koridorius 6,90  m2
7. Katilinė 6,65  m2
8. Garažas 24,00  m2
Viso: 104,08 m2

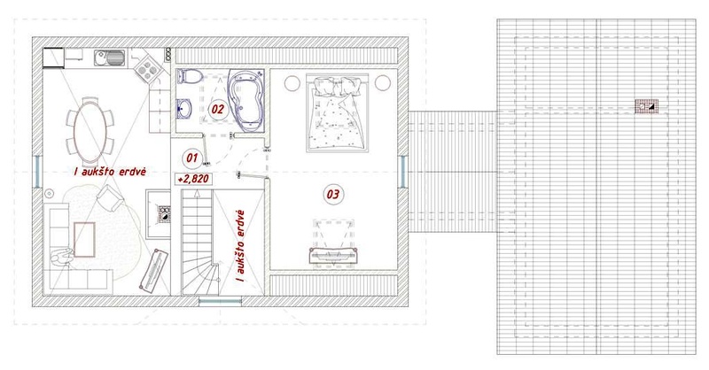
Antro aukšto planas

Antro aukšto planas
1. Holas 4,34  m2
2. Sanmazgas 2,63  m2
3. Miegamasis 15,48  m2
Viso: 22,45 m2

Rūsio planas

Visi parametrai

Aukštų skaičius 2
Kambarių skaičius 3
Sanmazgų skaičius 2
Garažo vietų skaičius 1
Naudingas plotas 126,53 m2
Pamatų konstruktyvas pagal geologiją 350 € + PVM
Yra garažas Taip
Min. sklypo plotas 600 m2
Kaina su statybos leidimu 3500 € + PVM
Namo projekto 3D modelis 219 € + PVM

"Aušra" išskirtinis vieno aukšto su mansarda namo projektas. Gyvenamasis namas ir pagalbinis pastatas suprojektuoti atskirai, tačiau šiuos du tūrius jungia stiklinė galerija. Namas pritaikytas 3-4 asmenų šeimai. Vaiko miegamasis ir darbo kambarys suprojektuoti pirmame aukšte, o tevų miegamasis su vonios kambariu- antrame aušte. Gyvenomoji zona (svetainė, virtuvė, valgomasis) yra labai erdvi, tęsiasi iki pat stogo. Tai aiškiai matyti plane. Jei manote, kad norite erdvumo, modernumo, bet tuo pačiu nenutolti nuo praktiškumo- šis projektas kaip tik Jums.